Rodinný dom

Zálesie Domky II

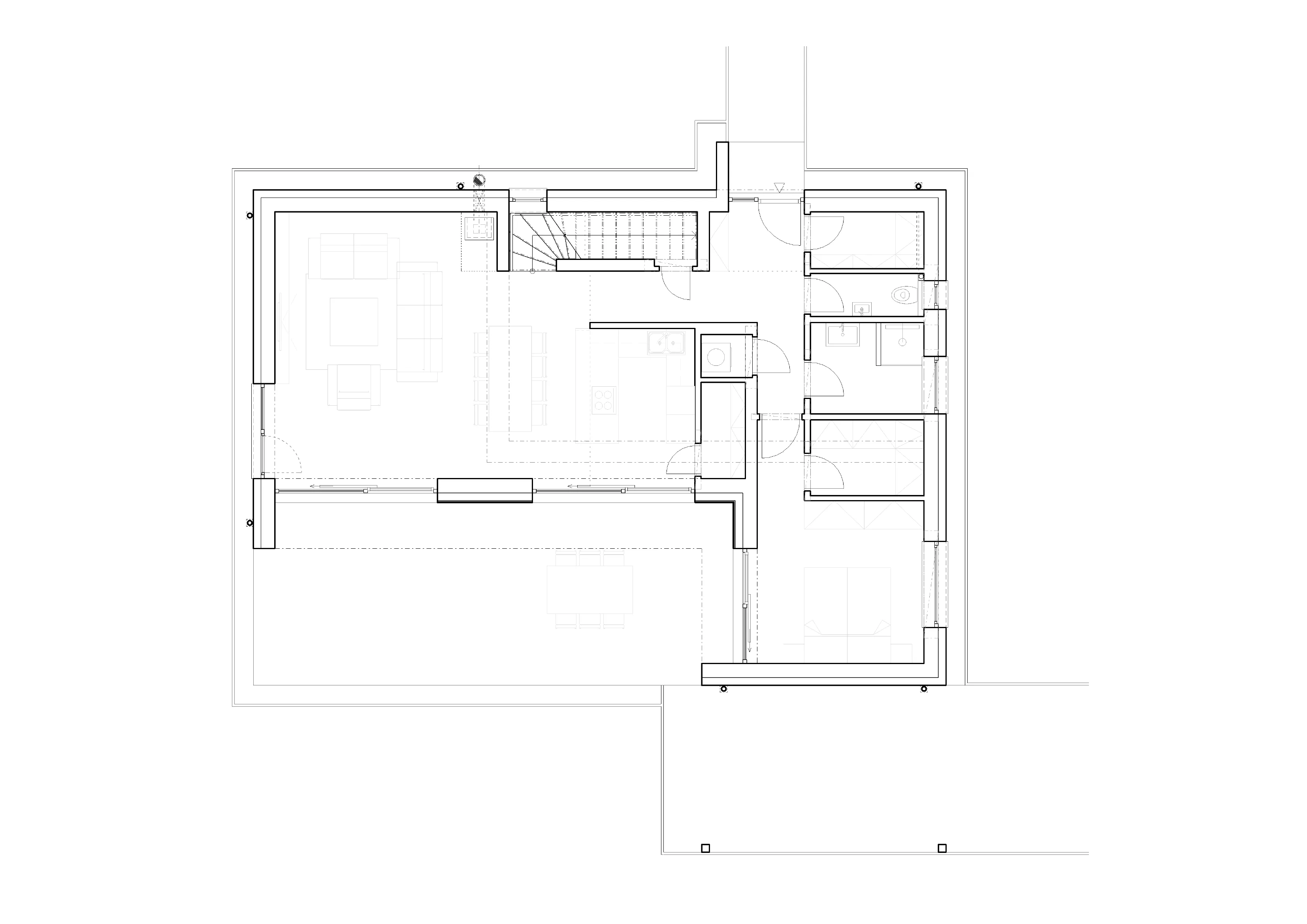
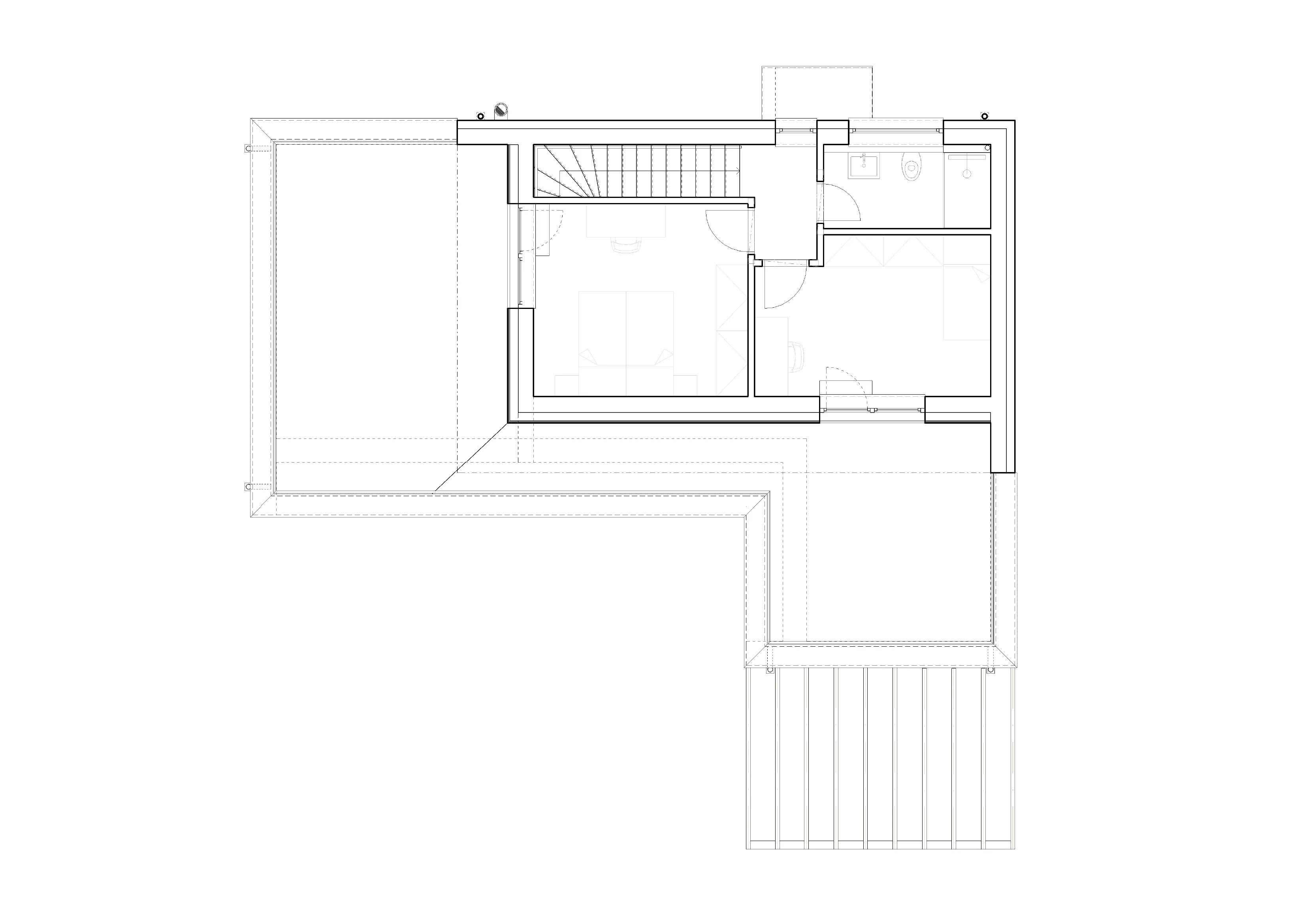
Poschodový rodinný dom pre štvorčlennú rodinu na rovinatom pozemku. Na prízemí denná zóna s kuchyňou, obývačkou a dvojgarážou, na poschodí súkromná oddychová časť so spálňami a kúpeľňami.

Rekreačný dom

Vojka

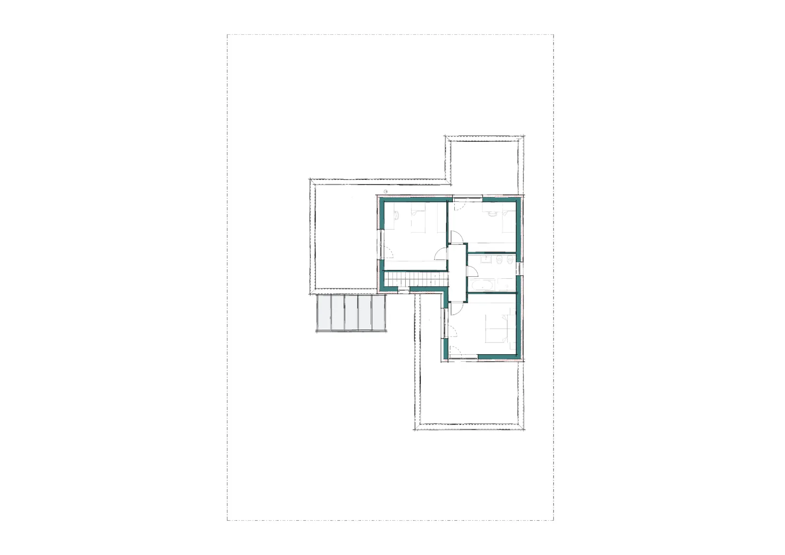
Rekreačná chata pri Vojkanskom jazere. Dvojpodlažný objekt s plochou strechou, presklenými fasádami na juh a čiastočne prestrešenou terasou. Poschodie s izbami pre hostí a strešnou terasou. Biele omietky v kombinácii s dreveným obkladom.

Portfólio

Ďalšie ukážky z projektov
a realizácií

← Hlavná stránka