Tvoríme priestory,
ktoré pretrvajú.

Navrhujeme a staviame rodinné domy.
Od prvého náčrtu po odovzdanie kľúčov.

Kontaktujte nás →
01

Stavebný zámer

Architektonický návrh, umiestnenie stavby a napojenie na infraštruktúru.

02

Projekt stavby

Kompletná projektová dokumentácia — podklad na realizáciu stavebných prác.

03

Realizácia

Vlastná stavebná realizácia od základov po strechu.

Vybraný projekt

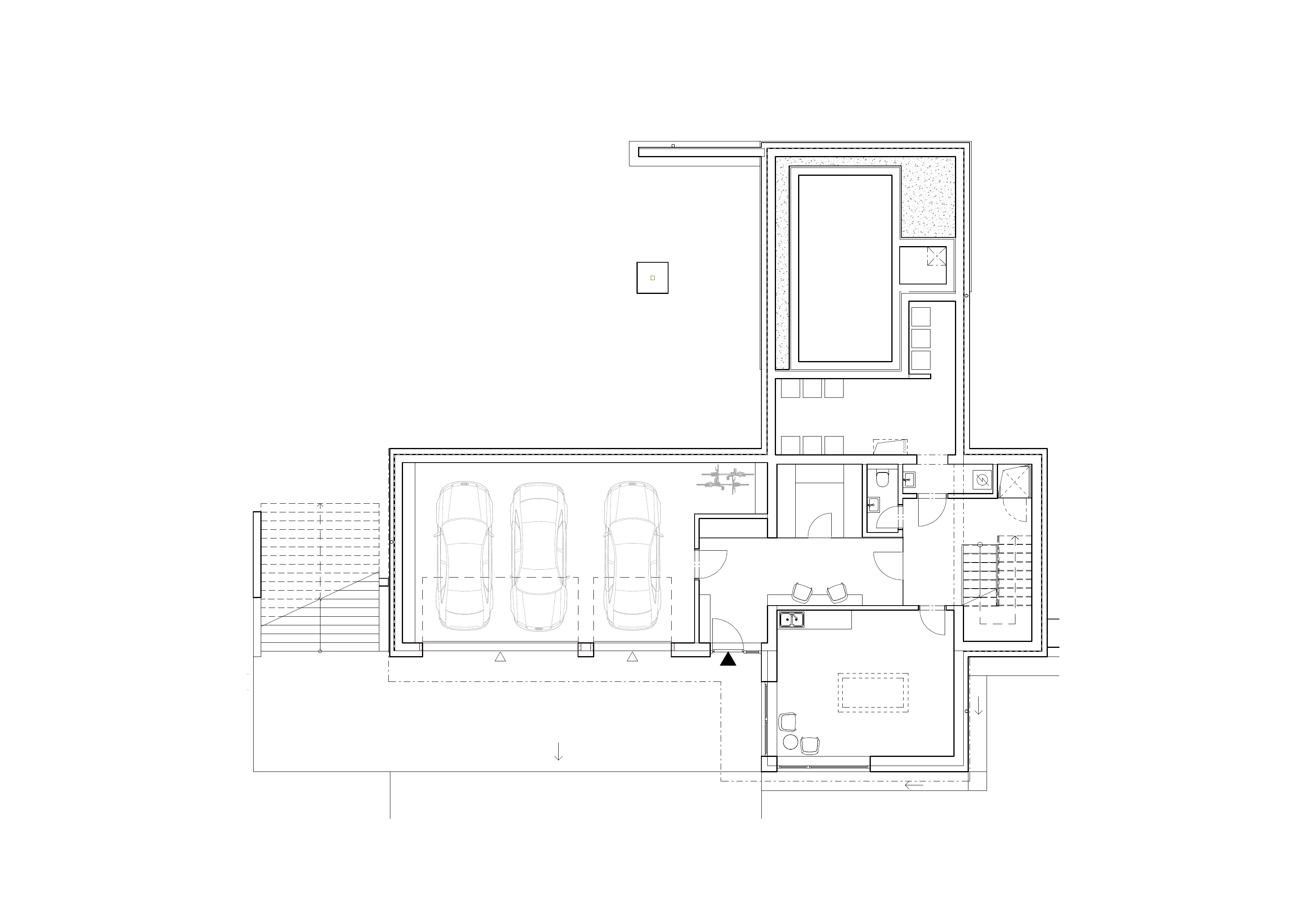
Rodinný dom
Limbach

Svažitý pozemok ako výhoda, nie prekážka. Dom maximálne využíva terén — spodné podlažie je zapustené do svahu, čím vznikol priestor pre interiérový bazén a technické zázemie. Orientácia presklení na juh zabezpečuje celodenné prirodzené osvetlenie obytných priestorov. Súčasťou domu je osobný výťah prepájajúci všetky tri podlažia.

Ďalšie projekty ↓
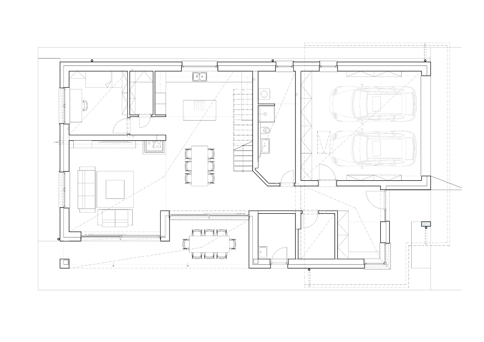
Rodinný dom

Ivanka pri Dunaji

Dvojpodlažný rodinný dom so sedlovou valbovou strechou. Obytné miestnosti orientované na juh, vstup a dvojgaráž z uličnej strany. Na prízemí denná zóna s kuchyňou a terasou, na poschodí tri izby a dve kúpeľne.

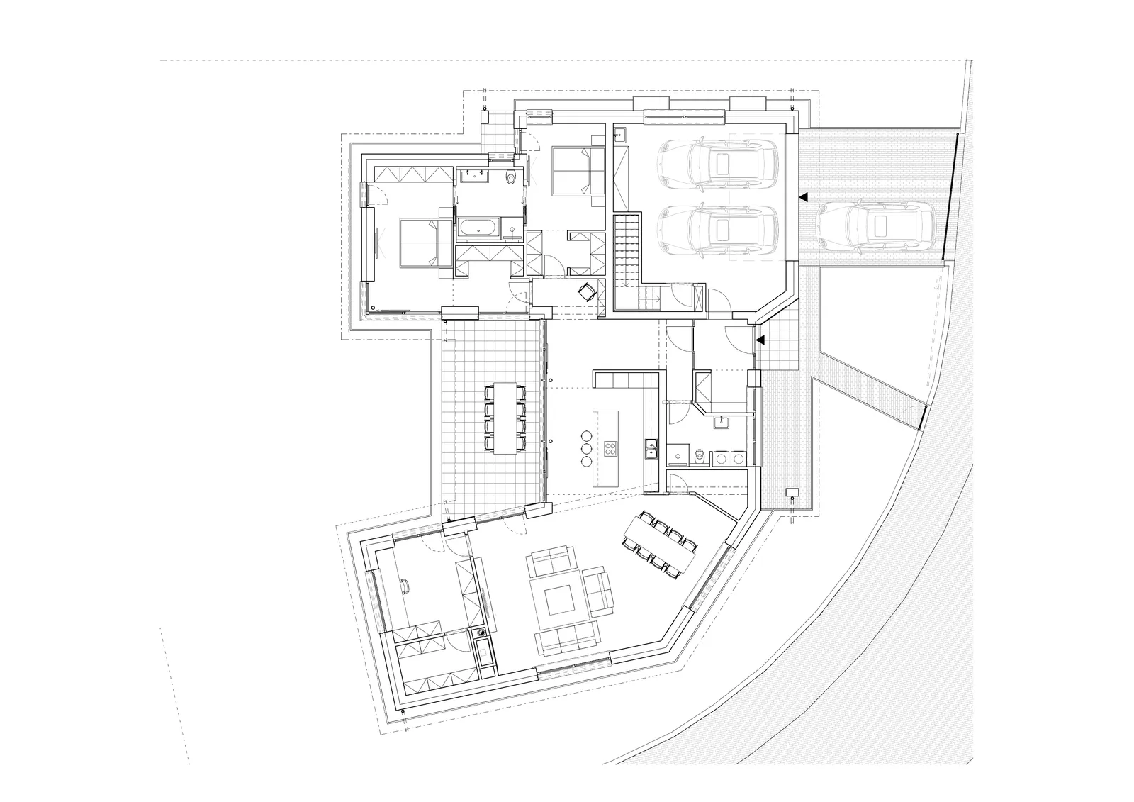
Rodinný dom

Ivanka pri Dunaji II

Prízemný rodinný dom s čiastočným podpivničením, formovaný do tvaru písmena U. Vzniknuté nádvorie slúži ako terasa lemovaná obytnou časťou s veľkými presklenými otvormi na juh. Súčasťou je dvojgaráž, tri izby, dve kúpeľne a technické zázemie v suteréne.

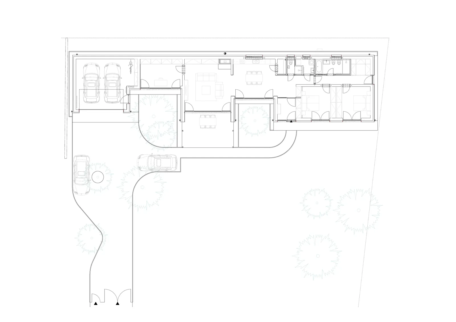
Rodinný dom

Zálesie Domky

Prízemný rodinný dom s plochou strechou, ktorý spája tradičné technológie so súčasnou architektúrou. Denná a oddychová zóna orientované na juh, presklené fasády lemované predsadenou strechou ako slnečnou clonou. Súčasťou je dvojgaráž a terasa zakomponovaná medzi vzrastlé stromy.

Polyfunkčný objekt

Perla Ružinova

Polyfunkčný bytový komplex s viacerými obytnými vežami, komerčnými priestormi na prízemí a spoločným vnútroblokom so zeleňou.

20+ rokov
skúseností

ZOCOM je bratislavské architektonické a stavebné štúdio. Špecializujeme sa na návrh a realizáciu rodinných domov — od prvej konzultácie, cez projekt, až po stavbu na kľúč.

Každý projekt riešime individuálne, s dôrazom na funkčnosť, kvalitu materiálov a trvalú hodnotu.